animated loader logo of butler armsden

Wurster Revival

Presented with the challenge of updating a 1939 design by William Wurster, Butler Armsden let the client’s travels — and, most importantly, the things they’ve brought back from them — serve as inspiration and influence. The architects’ pared-back palette of oak, charcoal-gray concrete, and black metal comfortably frames the clients’ sizable and diverse collection of paintings, craft objects, and art, leaving room for each space of the house to have its own distinct character. In the kitchen, a translucent sliding partition reminiscent of Japanese shoji creates a class pantry against the north-facing windows, defying the notion that a pantry must be dark, while a trunk-sized sink of rich wood makes the bathroom an immersive space.

Email Project

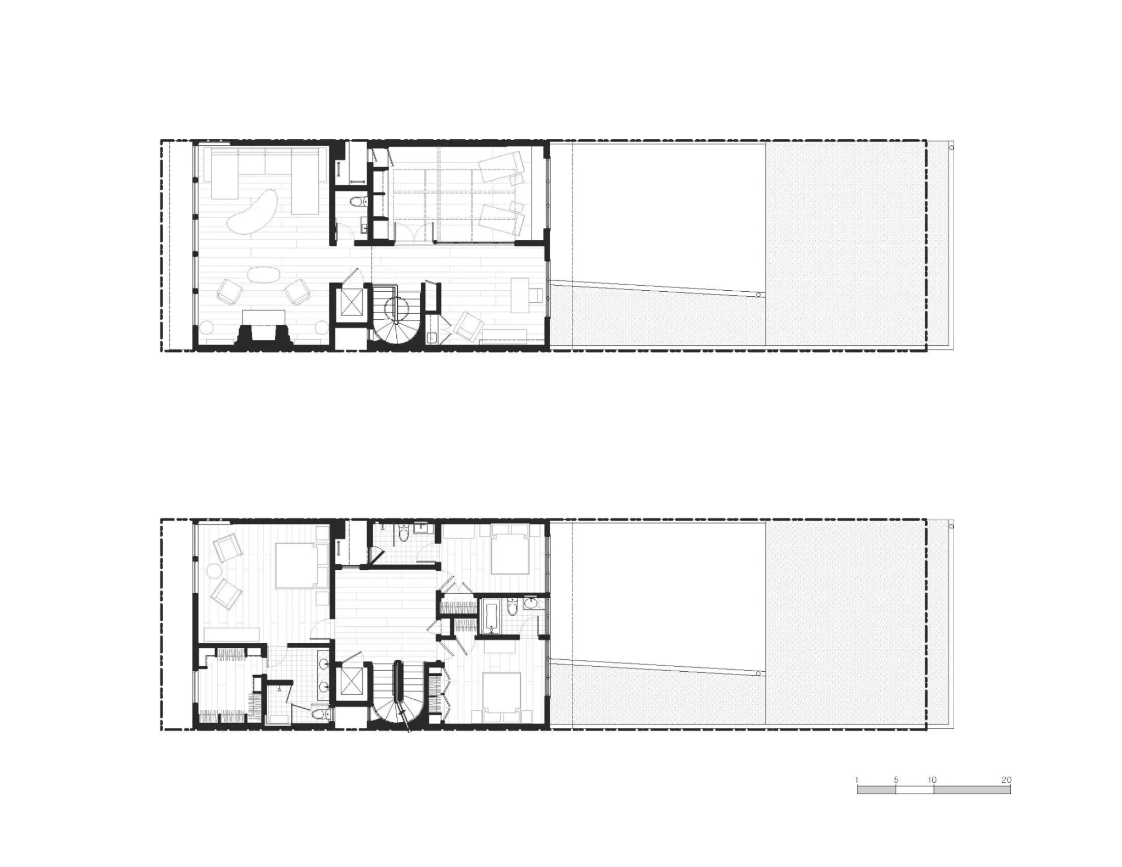
Floorplans

image of Wurster_LowerFloorPlans.jpg image of Wurster_UpperFloorPlans.jpg

Special Feature

The owner's unusual collection of art and objects complements the re-envisioning of William Wurster's 1939 architecture.

Project Details

image of MG_3780-1.jpg image of MG_2712.jpg

PROJECT SIZE

3000 sq ft

PROJECT LOCATION

San Francisco, CA

PROJECT LEAD

Dave Sturm

PUBLICATIONS


Photographer

Eric Rorer

General Contractor

GGD, Inc.

Interior Designer

Butler Armsden Architects


icon_close Created with Sketch.